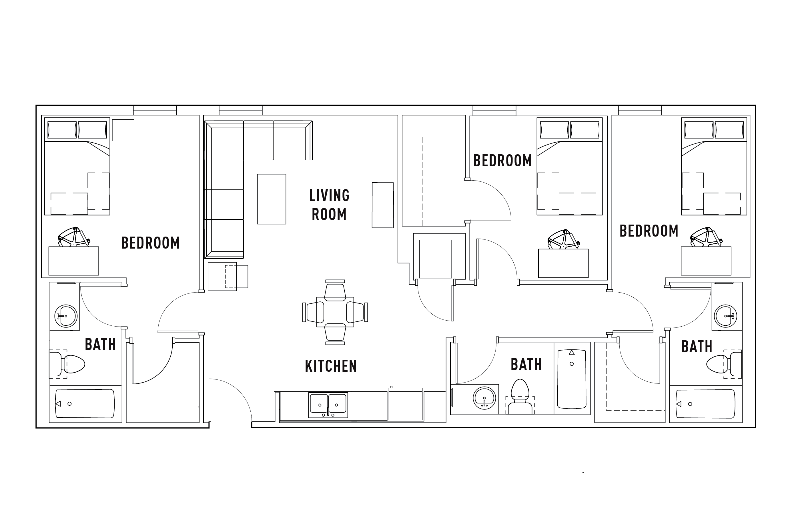
Live Grand In Serenity: Uncover The Perfect 3 Bed, 3 Bath Apartment Haven

by

Diablo

Live Grand In Serenity: Uncover The Perfect 3 Bed, 3 Bath Apartment Haven

Webfind your next 3 bedroom apartment in bowie md on zillow. Use our detailed filters to find the perfect place, then get in touch with the property manager. Featuring 3 king beds, this condo sleeps 6, promising a restful night’s sleep for all. 3br | 3ba oasis with bayfront views at sandestin golf and beach resort! Book a stay at this family.

Floor Plans - The Callaway House Austin - Student Housing - Austin, TX

Related Post